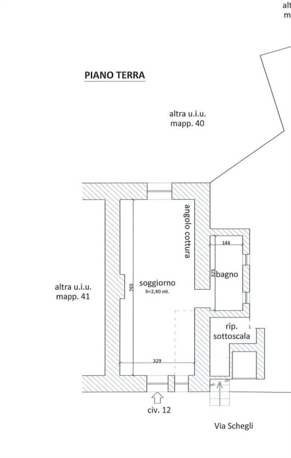
Mioglia Via Schegli 12

MiogliaDogli - 2 locali in vendita
25.500 €
Caratteristiche principali
96,51 m²
Superficie
4
Locali
2
Camere
1
Bagni
Descrizione
A) Appartamento a della superficie commerciale di 96,51 mq per la piena proprietà. Fabbricato avente accesso dal civ. 12 di Via Schegli. L’unità immobiliare si sviluppa come segue: - piano terra, avente altezza interna pari a mt. 2,40 circa, composto da soggiorno con angolo cottura, bagno e ripostiglio sottoscala avente accesso esterno nonché corte esclusiva. - piano primo, avente altezza interna variabile da mt. 2,40 a mt. 3,95 circa, composto da disimpegno, n° 2 camere, bagno. Attualmente i due piani sono collegati da una rampa costituita da assi in legno da cantiere; ad ogni buon conto si evidenzia che il piano primo è altresì accessibile a mezzo di scala esterna. I caratteri di finitura dell’unità immobiliare, rilevati al momento del sopralluogo (trattandosi di cantiere in itinere) consistevano in: pavimenti e pareti al grezzo ed impianti inesistenti; gli infissi (finestre) risultavano in legno e vetro camera e parte di tali infissi risultano completi di scuri in legnoIn generale le condizioni di manutenzione e conservazione e i caratteri di finitura interni dell’unità immobiliare risultano al grezzo e da completarsi.

NEOVIT LIGURIA, affiliato in esclusiva per la Liguria di NEOVIT CONSULTING, assiste i Clienti e semplifica il percorso per l'acquisto di immobili in ASTA GIUDIZIARIA, nuove procedure TELEMATICHE
La Società fornisce assistenza per vari servizi tra cui:
Ricerca immobile in base alle esigenze del cliente, visita dell'immobile, esame della perizia e della ulteriore documentazione,
assistenza in partecipazione, post aggiudicazione chiavi in mano,
liberazione compresa
Ulteriori foto e planimetrie disponibili relative all'immobile saranno consultabili previo appuntamento in sede.
Per approfondimenti
contattarci allo
0108565321
oppure all'indirizzo
info.liguria@neovit.it o whatsapp al +393497980649 o +393516599319
Siamo a tua disposizione per fornirti tutte le informazioni necessarie e fissare un appuntamento conoscitivo.
Lo staff NEOVIT è formato da professionisti del settore con competenze diverse, in grado di fornire una consulenza a 360 gradi sia da un punto di vista commerciale, sia da un punto di vista tecnico-legale.
L'immobile descritto viene venduto dal tribunale proprio in ASTA GIUDIZIARIA:
Il prezzo indicato si riferisce all'offerta MINIMA presentabile.
Per chi acquista come prima casa sono previste agevolazioni
Si precisa che trattasi di vendita publica alla quale si può partecipare personalmente o tramite
I NOSTRI SERVIZI comprendono anche le operazioni di SALDO E STRALCIO - sempre su richiesta del cliente e con possibilità da riconfermare - la ristrutturazione e i vari bonus oltre all'eventuale
assistenza per l'ottenimento di un mutuo finalizzato all'acquisto in asta.
HAI UNA CASA PIGNORATA? POSSIAMO AIUTARTI! CHIAMACI al 010-8565321 oppure SCRIVICI all'indirizzo email, info.liguria@neovit.it o whatsapp al 393497980649 o 393516599319
Siamo in grado di analizzare la tua posizione debitoria ed individuare la soluzione migliore.
NEOVIT CONSULTING LIGURIA
ASTE & STRALCI IMMOBILIARI
TELEFONO 010.8565321
Via Cesarea, 10/3 - 1°Piano
16121 Genova
Caratteristiche
Codice:
V098091
Città:
Mioglia (Dogli)
Categoria:
2 locali
Locali:
4
Camere:
2
Bagni:
1
Mq:
96,51
Mq Giardino:
90,14
Classe energetica:
In fase di valutazione
Stato Immobile:
Discrete Condizioni
Grado:
Economico
Riscaldamento:
No
Tipo Impianto:
No
Acqua Calda:
Assente
Infissi:
Legno
Serramenti:
Discreto
Persiana:
Persiana Legno
Pavim. Giorno:
Cemento
Pavim. Notte:
Cemento
Pavim. Cucina:
Cemento
Pavim. Bagno:
Cemento
Planimetrie
Mappa
Via Schegli, 12 - Mioglia (SV)
Cookie preference